开云官方端网站登录入口-开云online(中国)

ELEVATOR DOOR SYSTEM电梯门系统

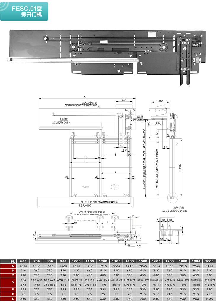
FESO.01型旁开门机